Three-Phase Pad-Mounted Transformer

PRODUCT PARAMETERS

•Standards designed as IEEE/ANSI, NEMA and DOE

•Rated power from 45kVA up to 5000 KVA

•Rated high voltage up to 46 kV

•Radial & loop feed configurations

•HV BIL 45-150 kV (Dead Front), 200 kV (Live Front)

• LV BIL 30-60 kV

•Dead-front and live-front HV terminals

•Rated frequency 60 Hz

•Vector Group is YNyn0, YNd11, Dny11,etc

•Naturally ONAN(F), KNAN(F), LNAN(F) on request

•Bayonet fuse, ELSP fuse and VFI are available

•LBOR switch (2 or 4 positions), V-blade, T-blade

•Delta-Wye switch, dual-voltage switch

•Elbow arrester, IFD, winding temperature indicator, hot-dip galvanized radiators and other accessories are available


Description
FAQs
Request A Quote

Description

AR Transformers Inc tamper-proof, compartmentalized, liquid-filled, pad-mounted transformers are integrated all-in-one distribution units designed for safe and reliable service. All units are designed, built, and tested to meet applicable standards including NEMA, ANSI/IEEE C57, and DOE requirements. Options such as over-current protection and sectionalized switching are available to maximize distribution system control. AR Transformers Inc three-phase pad-mounted transformers are ideal for residential, commercial, industrial, and public infrastructure applications.

THREE-PHASE   PAD-MOUNTED  TRANSFORMER

1111.png


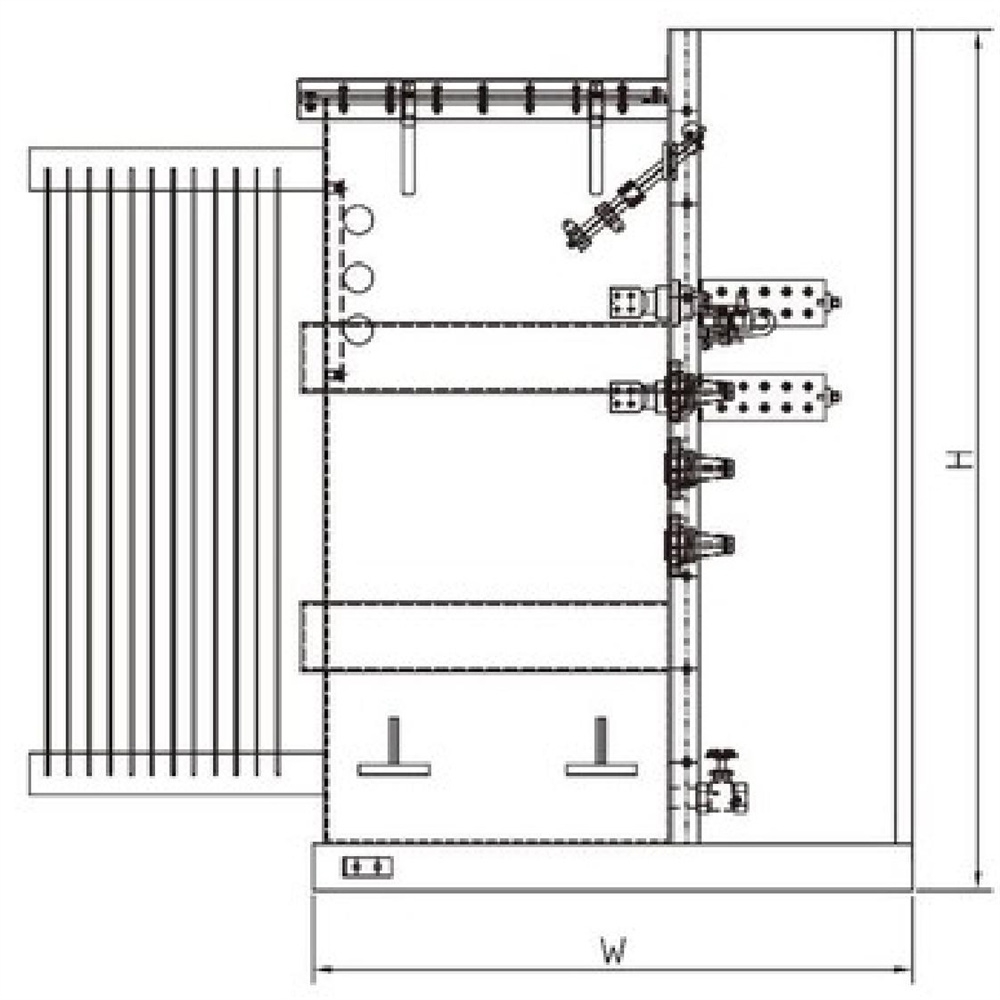
OUTLINE INSTALLATION DIMENSIONS

图片1.jpg2.jpg
3.jpg
1-251229200046418.jpg


FAQs

Our recommendation is that you buy a purpose-built step-up transformer instead of reverse feeding when possible.

Learn more about reverse-feeding transformers in this article.

Request A Quote